- Woonoppervlakte
- Circa 213 m²
- Perceeloppervlakte
- Circa 292 m²
- Bouwjaar
- Gebouwd in 1930
- Aantal kamers
- 6 kamers (5 slaapkamers)
Benzenraderweg 70
6417 ST, Heerlen (Limburg)
Open Huis
Zaterdag 15 november van 13:30 tot 14:30
Royale halfvrijstaande woning met karakter, veel ruimte en duurzame voorzieningen
Deze ruime woning beschikt over ca. 163 m² woonoppervlak, een kelder van maar liefst 55 m², en diverse buitenruimtes waaronder balkons en een tuin met terras en achterom. Dankzij het zijpad langs de woning bereikt u eenvoudig de achtertuin met overkapping en berging.
Indeling:
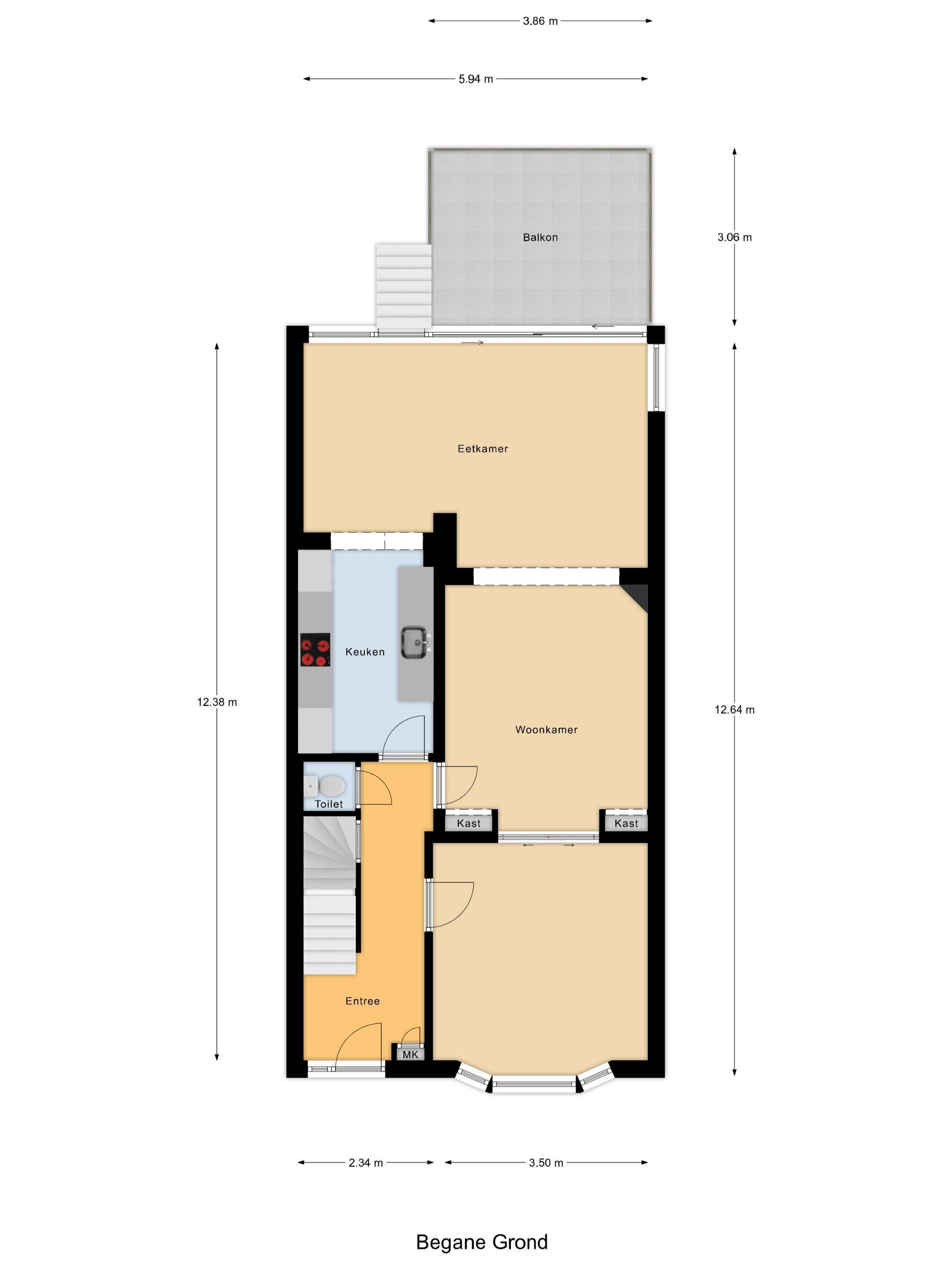
Begane grond: Entree met originele vloer, toilet, royale woonkamer met parketvloer en en suite indeling, moderne keuken (2023) en eetkamer met toegang tot balkon.
Eerste verdieping:
Slaapkamer 1: ca. 4.32 × 3.58 m
Slaapkamer 2: ca. 3.68 × 3.68 m (incl. erker)
Slaapkamer 3: ca. 3.42 × 2.36 m
Badkamer: met douche, toilet en dubbele wastafel
Balkon aan de achterzijde
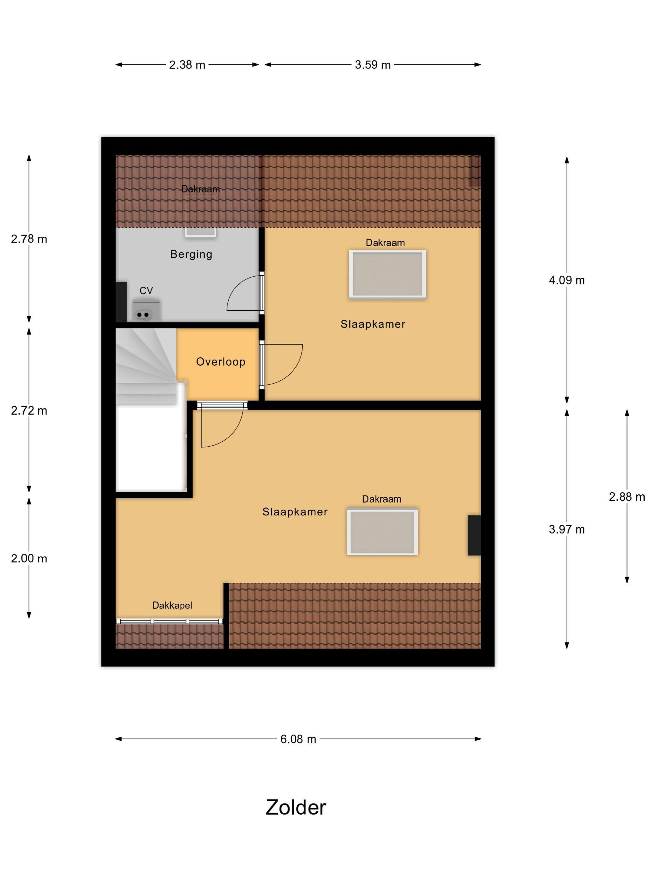
Zolder:
Slaapkamer 4: ca. 4.09 × 3.59 m (met dakraam)
Slaapkamer 5: ca. 3.97 × 2.88 m (met dakkapel)
Extra berging en CV-ruimte
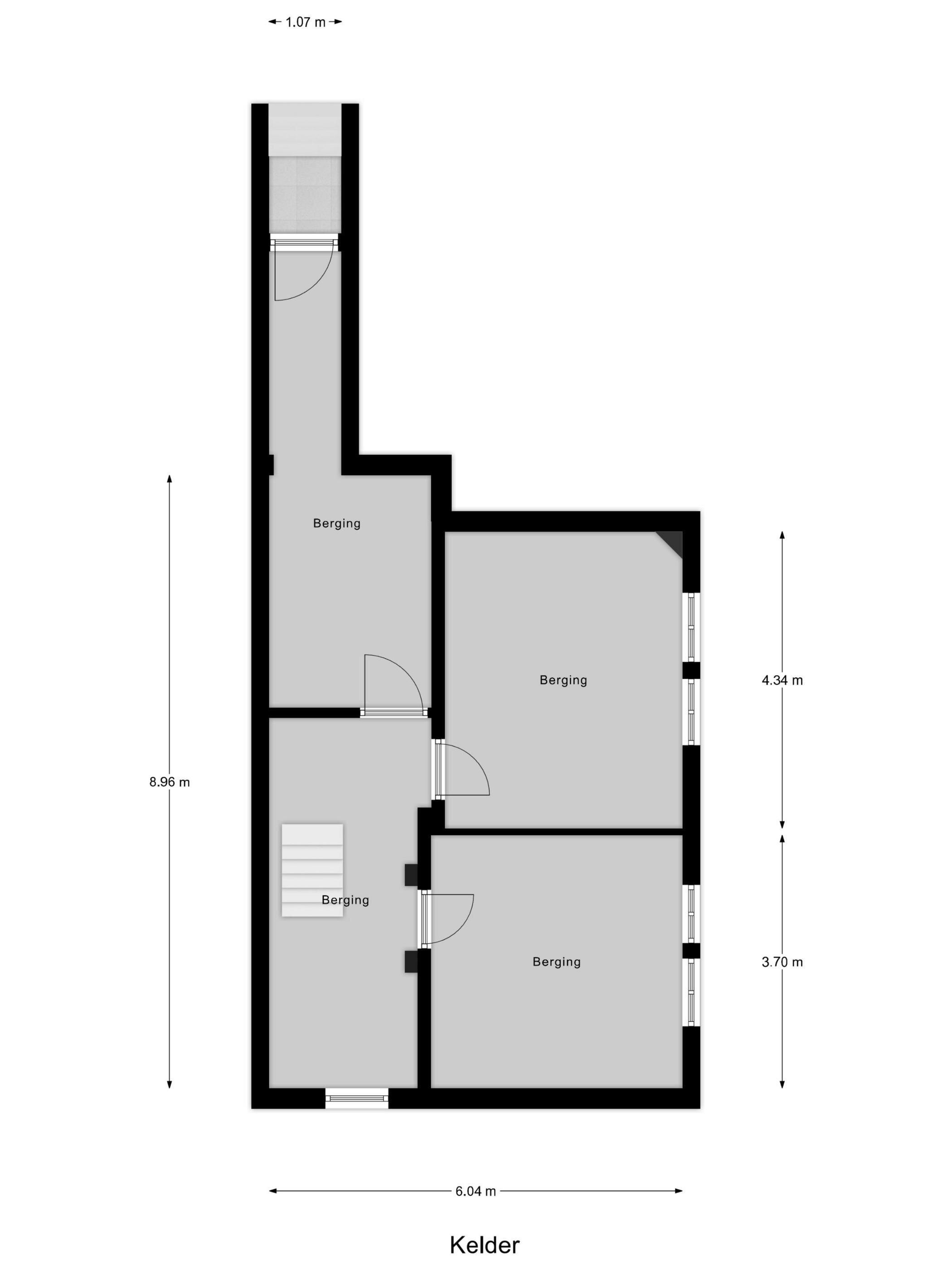
Kelder: Diverse praktische bergruimtes (ca. 55 m²).
Buiten: Terras (2017), berging (7 m²), overkapping en een tuin die al vanaf de late ochtend zon krijgt.
Bijzonderheden:
Dak vernieuwd in 2017
12 zonnepanelen (2017)
CV-ketel (Volta, huurconstructie)
Woonkamer met parketvloer en en suite indeling
Vijf slaapkamers
Zijpad met achterom
Een ideale gezinswoning met veel leefruimte, authentieke elementen en duurzame voorzieningen, gelegen op een goede locatie in Heerlen.
Disclaimer:
De waarborgsom/bankgarantie is 10% van de koopsom. De koper dient deze binnen 2 weken nadat het financieringsvoorbehoud is verlopen bij de desbetreffende notaris te deponeren.
Ter bescherming van de belangen van zowel koper als verkoper wordt uitdrukkelijk gesteld dat een koopovereenkomst met betrekking tot deze onroerende zaak eerst tot stand komt nadat koper en verkoper de koopovereenkomst hebben getekend (schriftelijkheidsvereiste).
Alle door ons kantoor verstrekte informatie omtrent onroerende zaken moet beschouwd worden als een uitnodiging om in onderhandeling te treden en is geheel vrijblijvend. Aangegeven maten zijn bij benadering. Aan deze informatie kunnen geen rechten worden ontleend.
Een eventueel bijgevoegde plattegrond dient uitsluitend als globale indicatie/visualisatie. Hieraan kunnen geen rechten worden ontleend. Indien de CV-ketel en/of warmwatervoorziening een huurtoestel betreft, dient de koper de huurovereenkomst over te nemen.
Overdracht
- Vraagprijs
- € 495.000 k.k.
- Status
- Beschikbaar
- Aanvaarding
- Direct
Bouw
- Object type
- Eengezinswoning, hoekwoning
- Soort bouw
- Bestaande bouw
- Bouwjaar
- 1930
- Soort dak
- Zadeldak bedekt met pannen
Oppervlakte en inhoud
- Woonoppervlakte
- 213 m²
- Perceeloppervlakte
- 292 m²
- Inhoud
- 597 m³
- Externe bergruimte
- 6 m²
- Gebouwgeb. buitenruimte
- 20 m²
Indeling
- Aantal kamers
- 6 kamers (5 slaapkamers)
- Aantal badkamers
- 1 badkamer en 1 apart toilet
- Badkamervoorzieningen
- Douche, dubbele wastafel, wastafelmeubel
- Voorzieningen
- Tv kabel, dakraam, zonnepanelen
Energie
- Energielabel
- B
- Energielabel registratie
- 05-09-2025
- Isolatie
- Dakisolatie
- Verwarming
- CV-ketel
Buitenruimte
- Ligging
- In woonwijk
- Tuin
- Achtertuin, zonneterras
- Afmetingen achtertuin
- 184 m² (23 meter diep en 8 meter breed)
Bergruimte
- Schuur / berging
- Vrijstaand steen
Parkeergelegenheid
- Soort parkeergelegenheid
- Parkeervergunningen
Energieverbruik in Heerlen
Energielabel deze woning
Energielabel B
Publicatie energielabel: 05-09-2025
Stroomverbruik per jaar
(Gemiddelde hoekwoning in Heerlen)
Gasverbruik per jaar
(Gemiddelde hoekwoning in Heerlen)
* Cijfers zijn afkomstig van het CBS en bedoeld als indicatie en kunnen verschillen voor deze woning
Indicatie hypotheeklasten
Eigen inleg:
Spaargeld / overwaarde
Rente:
Laagste 10-jaars rente
Laagste 10-jaars rente
2,75% - Centraal Beheer Groen... - NHG
3,04% - Argenta Groen Hypothee... - 80%
Laagste 20-jaars rente
3,18% - Argenta Groen Hypothee... - NHG
3,39% - Argenta Groen Hypothee... - 80%
Laagste 30-jaars rente
3,35% - Argenta Groen Hypothee... - NHG
3,56% - Argenta Groen Hypothee... - 80%
Hypotheek:
Bruto maandlasten: € 0 p/m
Netto maandlasten: € 0 p/m
Hoe berekenen we dit?
Het rentepercentage is gebaseerd op de laagste 10 jaars vaste rente voor één hypotheekdeel. De vermelde rente (3.04% zonder NHG) is gecontroleerd op 12-11-2025. Deze berekening is gebaseerd op een annuïteitenhypotheek die volledig wordt afgelost, waarbij de maandlasten gedurende de gehele looptijd gelijk blijven. De werkelijke rente en netto maandlasten kunnen variëren, afhankelijk van uw persoonlijke situatie en de hypotheekverstrekker. Raadpleeg een financieel adviseur voor een nauwkeurige berekening en advies. Aan deze berekening kunnen geen rechten worden ontleend; het dient enkel als indicatie.
Documentatie
Kadastrale kaart
Leefomgeving
BAG uittreksel
Brochure
WOZ waarderapport
Plattegronden PDF
Bezichtiging
Bod uitbrengen
Waardebepaling
Zoekopdracht
Alles downloaden
Zonnegrenzen bekijken
Inwoners in Heerlen
Cijfers voor postcodegebied 6417
- Totaal aantal inwoners
- 6635 inwoners
- Mannen
- 48%
- Vrouwen
- 52%
Inwoners in Heerlen
Cijfers voor postcodegebied 6417
- tot 15 jaar
- 12%
- 15 tot 25 jaar
- 9%
- 25 tot 35 jaar
- 29%
- 45 tot 65 jaar
- 27%
- 65 en ouder
- 23%
Huishoudens in Heerlen
Cijfers voor postcodegebied 6417
- Eenpersoons zonder kinderen
- 53%
- Meerpersoons zonder kinderen
- 26%
- Huishoudens zonder kinderen
- 79%
Huishoudens in Heerlen
Cijfers voor postcodegebied 6417
- Huishoudens met één kind
- 6%
- Huishoudens met meerdere kinderen
- 15%
- Huishoudens met kinderen
- 21%
Woningen in Heerlen
Cijfers voor postcodegebied 6417
- Woningen voor 1945
- 16%
- Woningen tussen 1945 en 1965
- 36%
- Woningen tussen 1965 en 1975
- 5%
- Woningen tussen 1975 en 1985
- 35%
- Woningen tussen 1985 en 1995
- 5%
Woningen in Heerlen
Cijfers voor postcodegebied 6417
- Woningen tussen 1995 en 2005
- 3%
- Woningen tussen 2005 en 2015
- 2%
- Woningen na 2015
- 1%
- Huurwoningen
- 50%
- Koopwoningen
- 50%
Overige in Heerlen
Cijfers voor postcodegebied 6417
- Gemiddelde WOZ waarde
- € 173.000,-
- Personen onder de 65 met uitkering
- 10%
Overige in Heerlen
Cijfers voor postcodegebied 6417
- Adressen per km²
- 1915
- Stedelijkheid (schaal 1 op 5)
- 80%
Korte feiten over Heerlen
Heerlen (Limburgs: plaatselijk Heële) is een stad en gemeente in het zuidoosten van de Nederlandse provincie Limburg. Op 1 januari 2024 had Heerlen 87.498 inwoners (CBS). Heerlen is daarmee de grootste gemeente in de Oostelijke Mijnstreek, en de vierde van Limburg, na Maastricht, Venlo en Sittard-Geleen.
Parkstad Makelaardij
Indien u vragen heeft of u wilt een bezichtiging inplannen, dan kunt u gebruik maken van het formulier hiernaast. Er zal daarna op korte termijn contact met u worden opgenomen.
Contact opnemen
Parkstad Makelaardij
Twijfelt u of het nu het juiste moment is om uw woning in Parkstad te verkopen? Dat is begrijpelijk zeker als u nog geen nieuw huis heeft gevonden, is die stap niet eenvoudig.
Toch denkt u er misschien aan om net als buren, vrienden of collega’s een volgende stap te zetten. Misschien speelt ook mee dat de markt op dit moment gunstig is, en u juist nu een goede prijs voor uw woning kunt krijgen—een kans die zich de komende jaren mogelijk niet meer voordoet.
Laat daarom vrijblijvend en kosteloos uw woningwaarde bepalen door Parkstad Makelaardij. Zo weet u precies waar u aan toe bent.
Nieuwste reviews
-
Nautiluserf 28
Heel erg tevreden goed en snel geholpen. Huis was heel snel verkocht binnen een 1,5 week hebben we een goed bod gekregen.Said was goed en sn...
-
Annastraat 34
Soepel contact. Reageert snel en is duidelijk. Hele fijne man om mee te werken. Saïd bedankt!
-
Aletta Jacobsstraat 34
Makkelijke communicatie en super vriendelijk. Reageert bij vragen heel snel.Is eenmans makelaar, waardoor al het werk door hem wordt gedaan....