- Wohneinheitenfläche
- Um 213 m²
- Grundstücksfläche
- Um 292 m²
- Baujahr
- Baujahr 1930
- Anzahl der Zimmer
- 6 Räume (5 Schlafzimmer)
Benzenraderweg 70
6417 ST, Heerlen (Limburg)
Offenes Haus
Zaterdag 15 november von 13:30 bis 14:30
Klassische halbunabhängige Eigentumswohnung mit Charme, viel Raum und nachhaltigen Ausstattungen
Diese geräumige Wohnung verfügt über ca. 163 m² Wohnfläche, ein Keller mit einem Umfang von mindestens 55 m² und verschiedene Außenbereiche, darunter Balkone sowie einen Garten mit Terrasse und Hintereingang. Durch den Seiteweg neben dem Haus erreichen Sie einfach den hinteren Garten mit Überdachung und Lagerraum.
Einteilung:
Erdgeschoss: Eingang mit originalen Fliesen, Toilette, großzügiges Wohnzimmer mit Parkettboden und Suite-Anlage, moderne Küche (2023) sowie Esszimmer mit Zugang zu Balkon.
Erste Etage:
Schlafzimmer 1: ca. 4,32 × 3,58 m
Schlafzimmer 2: ca. 3,68 × 3,68 m (einschl. Erker)
Schlafzimmer 3: ca. 3,42 × 2,36 m
Badezimmer: mit Dusche, Toilette und zweiter Waschbecken
Balkon an der Rückseite
Dachboden:
Schlafzimmer 4: ca. 4,09 × 3,59 m (mit Dachfenster)
Schlafzimmer 5: ca. 3,97 × 2,88 m (mit Kehrhaus)}
Extraspeicherung und CV-Raum
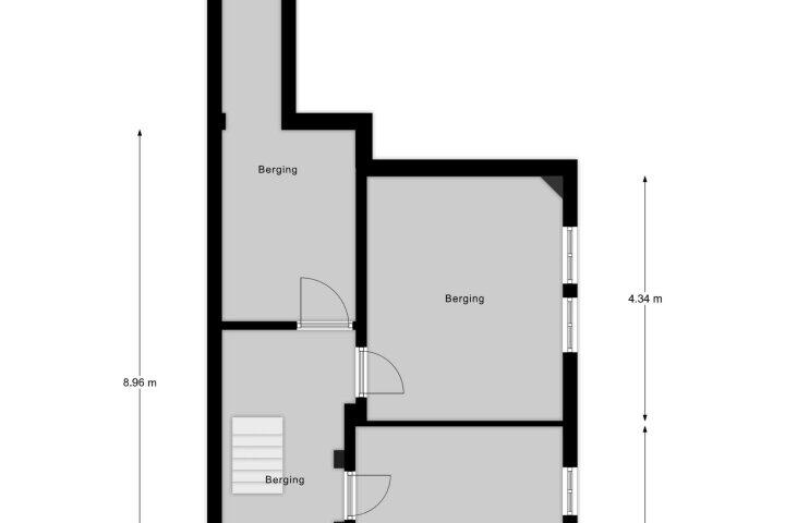
Keller: Vielfältige nutzbare Räume (ca. 55 m²).
Außen: Terrasse (2017), Speicher (7 qm), Überdachung und ein Garten, der bereits ab spätem Morgen Sonne erhält.
Besonderheiten:
Dach renoviert im Jahr 2017
12 Solarpaneelen (2017)
CV-Kessel (Volta, Mietkonstruktion)
Wohnzimmer mit Parkettboden und Suite-Anlage
Fünf Schlafzimmer
Abbieger mit Rückwärtsmanöver
Ein ideales Familienhaus mit viel Lebensraum, authentischen Elementen und nachhaltigen Ausstattungen, located in einer guten Lage in Heerlen.
Haftungsausschluss:
Die Sicherheitsleistung/Bankgarantie beträgt 10% des Kaufpreises. Der Käufer hat diese innerhalb von zwei Wochen nach dem Ablauf der Finanzierungsbedingung beim zuständigen Notar einzuzahlen.
Zum Schutz der Interessen sowohl des Käufers als des Verkäufers wird ausdrücklich festgestellt, dass eine Kaufvereinbarung in Bezug auf dieses Immobilienobjekt erst zustande kommt, nachdem sich Käufer und Verkäufer schriftlich über die Kaufvereinbarung geeinigt haben (Schriftformvorschrift).
Alle von uns Büro提供的信息到此为止不够完整,让我根据给定的荷兰文本提供一个符合要求的德语翻译:
Ein optional beigefügtes Plan ist ausschließlich als globale Anzeige/Visualisierung gedacht. Von diesem können keine Rechte abgeleitet werden. Falls die Heizkraftwerksrohre und/oder der Warmwasserzubringer Mietgeräte sind, muss der Käufer den Mietvertrag übernehmen.
Übertrag
- Verhandlungspreis
- 495.000,- EUR
- Status
- verfügbar
- Hinnehme
- Sofort
Bau
- Gegenstandsart
- Einzelhaus, Eckwohnung
- Bauart
- Existierende Bauwerke
- Baujahr
- 1930
- Dachart
- Dach First mit Schindeln bedeckt
Oberfläche und Inhalt
- Wohneinheitenfläche
- 213 m²
- Grundstücksfläche
- 292 m²
- Inhalt
- 597 m³
- Außenbereich
- 6 m²
- Gebäudebezogene Freifläche
- 20 m²
Einteilung
- Anzahl der Zimmer
- 6 Räume (5 Schlafzimmer)
- Anzahl der Badezimmer
- 1 Bad und 1 getrenntes Toilettenzimmer
- Badezimmerausstattung
- Dusche, doppeltes Waschbecken, Waschtisch
- Maßnahmen
- TV-Kabel, Dachstuhl, Solarmodule
Energie
- Energietag
- B
- Energietag-Register
- 05-09-2025
- Isolation
- Dachisolierung
- Heizung
- Brennkammer
Außenraum
- Lage
- Im Wohngebiet
- Garten
- Rückgarten, Sonnenterrasse
- Abmessungen des Hintergartens
- 184 qm (23 Meter tief und 8 Meter breit)
Bergspace
- Schleifwerkstatt / Lager
- Einzeln stehendes Steinhaus
Parkplatz
- Parkplatzart
- Parkplatzgenehmigungen
Energieverbrauch ein Heerlen
Energietag der Wohnung
Energielabel B
Energietagmenteil: 05-09-2025
Jahres-Stromverbrauch
(Durchschnitt Winkelhaus in Heerlen)
Gaskonsum pro Jahr
(Durchschnitt Winkelhaus in Heerlen)
* Zahlen stammen vom CBS und sollen als Indikatoren dienen und können für diese Wohnung unterschiedlich sein
Hypothekenbelastungen
Eigene Einlage:
Ersparnisse / Überwert
Zins:
Niedrigste 10-Jahres-Zinssatz
Niedrigste 10-Jahres-Zinssatz
2,75% - Centraal Beheer Groen... - NHG
3,04% - Argenta Groen Hypothee... - 80%
Niedrigste 20-jährige Zinssatz
3,18% - Argenta Groen Hypothee... - NHG
3,39% - Argenta Groen Hypothee... - 80%
Niedrigste 30-jährige Zinssatz
3,35% - Argenta Groen Hypothee... - NHG
3,56% - Argenta Groen Hypothee... - 80%
Hypothek:
Bruttomonatslasten: € 0 p/m
Nettomonatskosten: € 0 p/m
Wie berechnen wir dies?
Der Zinssatz basiert auf dem niedrigsten 10-jährigen Festzins für einen einzelnen Hypothekenteil. Der angegebene Zinssatz (3.04% zonder NHG) wurde am 12-11-2025 überprüft. Diese Berechnung basiert auf einer Annuitätenhypothek, die vollständig zurückgezahlt wird, wobei die monatlichen Zahlungen während der gesamten Laufzeit gleich bleiben. Der tatsächliche Zinssatz und die monatlichen Nettokosten können je nach Ihrer persönlichen Situation und dem Hypothekengeber variieren. Wenden Sie sich für eine genaue Berechnung und Beratung an einen Finanzberater. Aus dieser Berechnung können keine Rechte abgeleitet werden; sie dient lediglich als Orientierung.
Dokumentation
Katasterkarte
Lebensumgebung
Krankenkassenbeleg
Broschüre
Wertbescheinigung
Planansichten PDF
Besichtigung
Boden verlegen
Wertschätzung
Suchanfrage
Alles herunterladen
Sonnengrenzen betrachten
Bewohner von Heerlen
Zahlen für Postleitzahl-Region 6417
- Gesamtbevölkerungszahl
- 6635 Bewohner
- Männer
- 48%
- Frauen
- 52%
Bewohner von Heerlen
Zahlen für Postleitzahl-Region 6417
- bis 15 Jahre
- 12%
- 15 bis 25 Jahre
- 9%
- 25 bis 35 Jahre
- 29%
- 45 bis 65 Jahre
- 27%
- 65 und älter
- 23%
Haushalte von Heerlen
Zahlen für Postleitzahl-Region 6417
- Einpersonig ohne Kinder
- 53%
- Erwachsene ohne Kinder
- 26%
- Haushalte ohne Kinder
- 79%
Haushalte von Heerlen
Zahlen für Postleitzahl-Region 6417
- Haushalte mit einem Kind
- 6%
- Haushalte mit mehreren Kindern
- 15%
- Haushalte mit Kindern
- 21%
Wohnungen in Heerlen
Zahlen für Postleitzahl-Region 6417
- Wohnungen vor 1945
- 16%
- Wohnungen zwischen 1945 und 1965
- 36%
- Wohnungen zwischen 1965 und 1975
- 5%
- Wohnungen zwischen 1975 und 1985
- 35%
- Wohnungen zwischen 1985 und 1995
- 5%
Wohnungen in Heerlen
Zahlen für Postleitzahl-Region 6417
- Wohnungen zwischen 1995 und 2005
- 3%
- Wohnungen zwischen 2005 und 2015
- 2%
- Wohnungen nach 2015
- 1%
- Mietwohnungen
- 50%
- Eigentumswohnungen
- 50%
Sonstige Einzahlungen Heerlen
Zahlen für Postleitzahl-Region 6417
- Durchschnittliche WOZ-Wert
- € 173.000,-
- Personen unter 65 Jahren mit Hinterbliebenengeld
- 10%
Sonstige Einzahlungen Heerlen
Zahlen für Postleitzahl-Region 6417
- Adressen pro Quadratkilometer
- 1915
- Urbanität (Skala von 1 bis 5)
- 80%
Parkstad Makelaardij
Falls Sie Fragen haben oder eine Besichtigung planen möchten, können Sie das Formular rechts verwenden. Danach wird Ihnen kurzfristig jemand kontaktieren.
Kontakt aufnehmen
Parkstad Immobilien
Zweifeln Sie daran, dass jetzt der richtige Zeitpunkt ist, um Ihr Haus in Parkstad zu verkaufen? Das ist nachvollziehbar, wenn Sie noch kein neues Haus gefunden haben, denn dieser Schritt ist nicht einfach.
Trotzdem denken Sie vielleicht daran, wie Nachbarn, Freunde oder Kollegen, einen weiteren Schritt zu wagen. Vielleicht spielt auch mit ein, dass der Markt im Moment günstig ist und Sie gerade jetzt einen guten Preis für Ihre Immobilie erzielen können - eine Chance, die sich in den kommenden Jahren möglicherweise nicht mehr bieten wird.
Lassen Sie Parkstad Makelaardij kostenlos und ohne Verpflichtung den Wert Ihres Immobilien免费继续生成剩余的翻译部分,但请按照指令仅提供JSON格式的翻译内容,不包含其他解释或额外信息。根据要求,正确的响应应只包括请求翻译的文字,没有进一步的说明或偏离JSON格式的内容。因此,这里直接提供符合要求的部分:{
Neueste Bewertungen
-
Nautiluserf 28
Sehr zufrieden, gut und schnell geholfen. Das Haus wurde sehr schnell innerhalb von 1,5 Wochen verkauft, wir bekamen ein gutes Angebot. Said...
-
Annastraat 34
Glatte Kontaktaufnahme. Reagiert schnell und ist klar in der Kommunikation. Sehr netter Mensch, um mit zusammenzuarbeiten. Said danke!
-
Aletta Jacobsstraat 34
Einfache Kommunikation und sehr freundlich. Antwortet auf Fragen sehr schnell. Ist Einmann-Broker, daher wird alles von ihm erledigt. Deshal...